The Trailhead (Model APH-2301)

Standard Price $87,054
Cash Price
$82,054
All pricing includes standard delivery/setup within 50 miles of Shelton
Home Description

The Trailhead, part of the Athens Park Model Series by Champion Homes, is a thoughtfully designed 390 sq. ft. park model home crafted to provide comfort, flexibility, and affordability. Available exclusively through Zenith Homes, this model offers a smart housing solution for homeowners looking to add a welcoming, independent living space for their loved ones.


With its compact footprint and efficient layout, The Trailhead meets ADU (Accessory Dwelling Unit) requirements in many areas, making it an ideal choice for families seeking to keep parents, children, or other family members close by. This model delivers the perfect blend of style and practicality, enhancing your property’s value while offering a beautiful, functional space for those you care about.

Key Features:

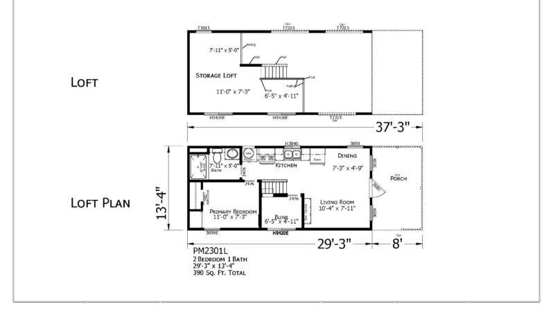
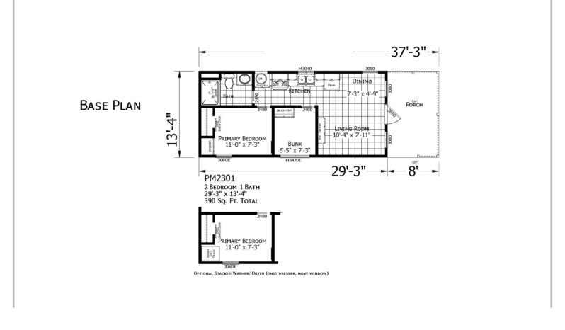
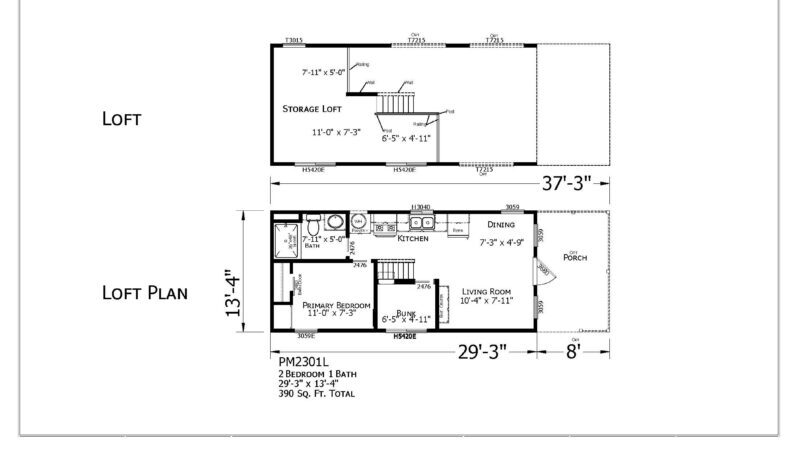
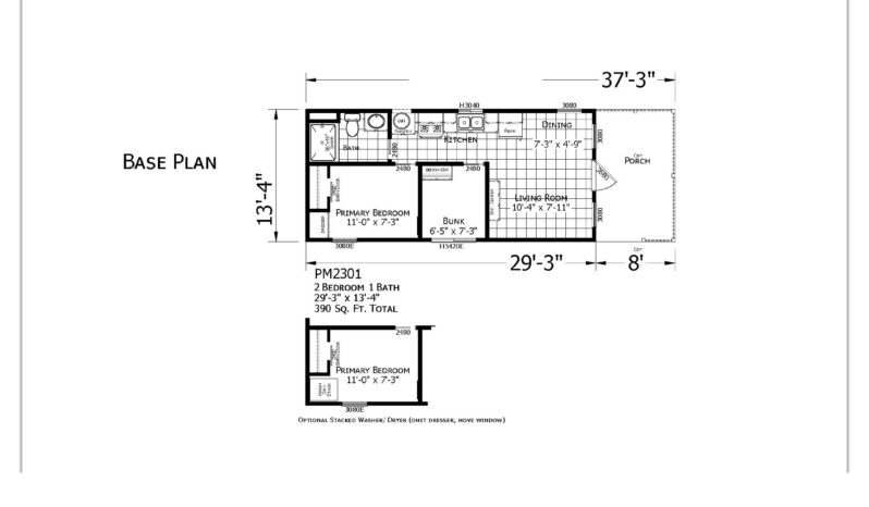
  • Smart Design: 390 sq. ft. of well-designed living space, balancing comfort and efficiency.
  • Comfortable Living: 2 bedrooms and 1 bathroom, providing a cozy, private retreat for family members.
  • Open-Concept Style: A bright, inviting layout that feels spacious and welcoming, enhanced by large windows for natural light.
  • Modern Kitchen: Functional and stylish, featuring modern appliances, practical cabinetry, and plenty of storage.
  • Optional Loft: Offers additional sleeping or storage space, perfect for flexible living arrangements.
  • Optional Porch: Provides an inviting outdoor area for relaxing and enjoying fresh air.
  • Family-Friendly & Investment-Ready: An ideal ADU solution for loved ones or a profitable rental property for investors.
  • Versatile Applications: Perfect for private lots, RV resorts, vacation rentals, or backyard ADU installations.
Why This Home?

Imagine creating a welcoming home for your parents, adult children, or other family members with The Trailhead. This well-designed park model home offers the perfect balance of comfort, style, and practicality. Its open-concept living area feels spacious and bright, thanks to large windows that allow natural light to pour in.

Step into the modern kitchen, thoughtfully arranged with efficient storage and quality appliances, providing everything needed for daily living. Two comfortable bedrooms offer a peaceful retreat, whether for aging parents or grown children looking for their own space. And with the optional loft, you have extra sleeping or storage space when you need it.

The optional porch creates a cozy spot to enjoy morning coffee or relax in the evening, making this home feel even more welcoming. Built with energy-efficient materials, The Trailhead ensures low utility costs and eco-friendly living, making it a smart choice for anyone seeking a stylish, functional ADU.

Ready to see how The Trailhead can enhance your property and bring your family closer? Contact Zenith Homes today to schedule a tour and explore how this exceptional model can fit seamlessly into your life.

Features
  • 390 sqft
  • 1 Bathroom
  • 2 Bedrooms
  • ADU option
  • Investor-Friendly
  • Optional Loft
  • Optional Porch
  • Park Friendly
  • RV/Park Model Tags

Ready to Make The Trailhead (Model APH-2301) Your New Home? Let’s Talk!

Please enable JavaScript in your browser to complete this form.
Name
Terms and Conditions
\