Introducing The Gain by Fleetwood, a model from their Pure Series that redefines value and affordability. This home is perfectly suited for first-time homebuyers, those seeking an Accessory Dwelling Unit (ADU), or anyone looking for a budget-friendly option in a mobile home park or community. Imagine a home that offers all the essentials with a touch of elegance, designed to maximize every square foot for your comfort and convenience.
Key Features:
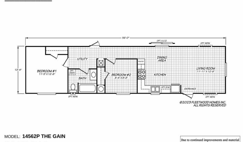
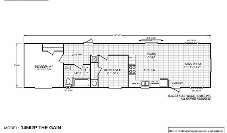
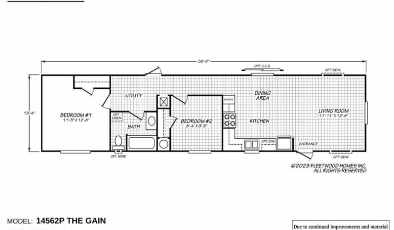
- Compact Efficiency: 750 sq. ft. of thoughtfully designed living space, perfect for small properties or communities
- Versatile Living: 2 cozy bedrooms and 1 well-appointed bathroom, ideal for couples, small families, or as an ADU
- Modern Kitchen: A practical kitchen with efficient appliances, ample cabinetry, and a smart layout
- Bright and Open: An open-concept living area with large windows that let in natural light, creating a warm and inviting atmosphere
- Practical Utility Room: A convenient laundry area with additional storage space
- Energy Efficient: Built with energy-saving materials and equipped with modern, efficient appliances
- Customizable Design: Multiple interior and exterior customization options to make the home uniquely yours
- Outdoor Living Potential: Designed with an optional covered porch to add outdoor living options to your home!
Why This Home?
Imagine The Gain as the perfect addition to your property, offering a versatile and budget-friendly solution for extended family living, guest accommodations, or rental income. Its compact yet efficient design ensures it fits seamlessly on most properties, making it an excellent choice for an ADU. The modern kitchen is perfect for daily meal prep, featuring high-quality appliances and smart storage solutions.
The open-concept living area provides a bright and airy space for both relaxation and entertaining, with large windows that bring in plenty of natural light. The bedrooms offer cozy and private retreats, perfect for unwinding after a long day. The convenient laundry area adds to the home’s functionality, ensuring all your needs are met.
Energy-efficient features make The Gain a smart choice for both your wallet and the environment, helping you save on utility bills while living sustainably. Customization options allow you to personalize the home to reflect your unique taste, ensuring it complements your existing property or stands out beautifully in a mobile home park or community.
The Gain by Fleetwood isn’t just a house; it’s a versatile living solution that offers incredible value and endless possibilities. Whether you’re a first-time homebuyer, looking to enhance your property with an ADU, or seeking an affordable home in a community setting, The Gain delivers on all fronts. Don’t wait to make your dream of homeownership or property enhancement come true. Pick up the phone and call us today to find out how The Gain can be yours. Welcome to a life of comfort, versatility, and exceptional value. Welcome to The Gain.
