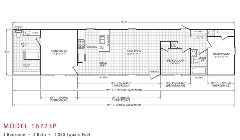
Step into The Lux by Fleetwood, where affordability meets elegance in the Pure Series. Designed with meticulous attention to detail, this home offers a luxurious living experience without the hefty price tag. Imagine a home that combines modern amenities with a cozy, inviting atmosphere, making it the perfect choice for those who seek value without compromising on quality. Plus, The Lux makes an excellent Accessory Dwelling Unit (ADU), adding versatility and value to your property.
Key Features:
- Compact Elegance: 1100 sq. ft. of efficiently designed living space, maximizing every inch for comfort and functionality
- Cozy Living: 2 spacious bedrooms and 2 stylish bathrooms, perfect for small families, couples, or as an ADU
- Modern Kitchen: A well-appointed kitchen with sleek appliances, ample storage, and a functional layout for all your culinary needs
- Bright and Open: An open-concept living area with large windows that flood the space with natural light, creating a warm and welcoming environment
- Primary Suite Retreat: A comfortable primary bedroom with an en-suite bathroom and a walk-in closet
- Practical Utility Room: A convenient laundry area with additional storage space
- Energy Efficient: Built with energy-saving materials and equipped with modern, efficient appliances to help reduce utility costs
- Customizable Options: Various interior and exterior customization options to make the home uniquely yours
