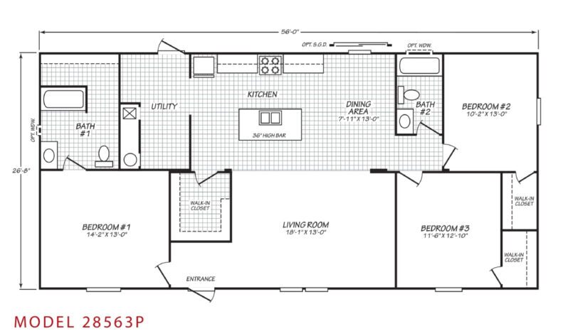
Welcome to The Prosper by Fleetwood, where affordable living meets exceptional value. Part of the new Pure Series, this home is designed to bring your homeownership dreams within reach without compromising on quality or style. Imagine a home that packs everything you need into a smart, budget-friendly package. This is the perfect choice for first-time buyers, young families, or anyone looking to downsize without giving up comfort.
Key Features:
- Affordable Luxury: 1,500 sq. ft. of well-designed living space that maximizes every dollar
- Comfortable Living: 3 spacious bedrooms and 2 modern bathrooms, perfect for family life
- Smart Kitchen: A practical kitchen with efficient appliances, ample storage, and a functional layout
- Open and Bright: An open-concept living area that creates a welcoming and airy environment
- Primary Suite: A comfortable primary bedroom with an en-suite bathroom and a walk-in closet
- Utility Room: A dedicated laundry area with extra storage space for added convenience
- Energy Efficient: Built with energy-saving materials and equipped with modern, efficient appliances
- Customizable Options: A variety of interior and exterior customization options to fit your personal style
