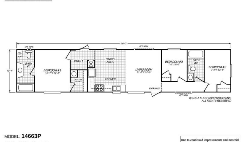
Meet The Trophy by Fleetwood, a standout model from the Pure Series that perfectly balances affordability, functionality, and charm. This home is designed to fit effortlessly on most properties, making it an ideal choice for an Accessory Dwelling Unit (ADU) or a budget-friendly home in a mobile home park or community. Imagine a space where every feature is crafted to enhance your living experience while keeping costs low.
Key Features:
- Smart Living Space: Just shy of 900 sq. ft. of efficiently designed living space, perfect for small properties or communities
- Versatile Layout: Two different configurations offering maximum flexibility for your needs: choose from 2 comfortable bedrooms and 2 well-appointed bathrooms, or upgrade to 3 bedrooms and 100 extra square feet. Both options are ideal for small families, couples, or as an ADU
- Functional Kitchen: A modern kitchen with efficient appliances, ample storage, and a practical layout
- Open and Inviting: An open-concept living area with large windows that flood the space with natural light, creating a bright and welcoming atmosphere
- Convenient Utility Room: A practical laundry area with additional storage space
- Energy Efficient: Built with energy-saving materials and equipped with modern, energy-efficient appliances
- Customizable Design: Various interior and exterior customization options to fit your personal style
 
 
 
  
  
 