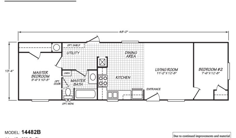
Discover the perfect solution for adding more living space with The Bench by Fleetwood. This home is designed to be the ideal Accessory Dwelling Unit (ADU), offering affordability without giving up quality or style! Imagine a space that complements your existing property, providing comfort and convenience for extended family, guests, or even rental income.
Key Features:
- Compact Efficiency: 640 sq. ft. of intelligently designed living space, perfect for an ADU
- Charming and Functional: 2 cozy bedrooms and 1 well-appointed bathroom
- Modern Kitchen: A fully-equipped kitchen with contemporary appliances, ample cabinetry, and a smart layout
- Open-Concept Living: A bright and airy living area that maximizes space and light
- Comfortable Bedrooms: Well-designed bedrooms that provide a relaxing retreat
- Practical Utility Room: A convenient laundry area with additional storage options
- Energy Efficient: Constructed with energy-saving materials and equipped with modern, energy-efficient appliances
- Customizable Options: Various interior and exterior customization options to match your main property
